成功案例
有疑惑,請問有什么可以幫您?
萬新電氣有限公司
來源:必旺智能2023-05-18
公司介紹:
萬新電氣有限公司始建于2004年,位于鄭洛新國家自主創新示范區—新東產業集聚區,是國家高新技術企業、國家科技型中小企業、市規模以上工業企業、電力協會標委會成員單位。
萬新電氣占地40余畝,建筑面積3.8萬平方米,擁有員工300余人,擁有國內優良電子產品生產線,先后與河南工學院、西安交大、 國網電科院、中電科等院校建立了深度的產學研合作。
萬新智慧工廠以創新為核心競爭力,推行人才戰略計劃,現擁有各類優良技術人員90余人,其中工程師及以上40余人,各類優良技能人員50余人。并相繼建立了“省市級工程技術研究中心”,相關發明50余項,申請科技成果20余項。多年來專注于電能質量、電力儀表、電子產品(OEM與ODM)的研發和制造,為肯尼亞、印度、波蘭等國家長期提供可靠的技術支持。公司是國內優先設計生產汽車點焊無功補償控制器的廠家,系列產品銷量更是處于行業領跑地位。
服務項目:精益車間布局規劃+智能化規劃
項目目標:
實現工廠數據規范化、標準化
生產車間、布局,信息化、數據化
多工廠多組織的資料完整配置
產品信息化,可配置,可擴展
項目內容:
本規劃項目涉及對工廠進行整體規劃,規劃內容包含對車間精益布局規劃、水電氣設計與布局規劃、車間物流AGV配送規劃、智能化電子倉庫規劃等服務內容,實現工廠數據規范化、標準化,可滿足未來公司高速擴張的生產需求。
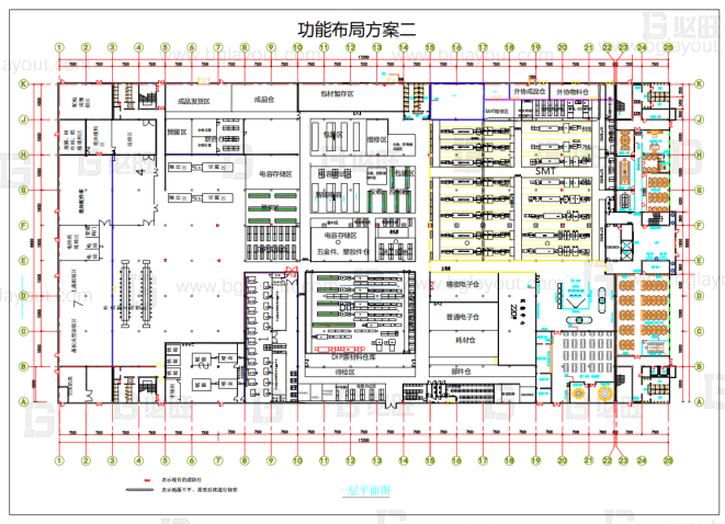
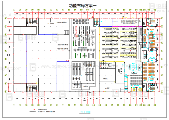
整體布局規劃方案:
.png)
.png)
.png)
選擇多樣,提供三個方案供客戶選擇,最終結合整體投資回報分析,選擇一版最合適企業戰略發展的方案!
.png)
車間布局圖
.png)
車間電力規劃
.png)
布局實施計劃-嚴控時間節點
.png)
AGV配送規劃
.png)
電子料倉SMD智能料架方案:實現物資可視化管理,防止物資使用和歸還錯誤,提高作業效率&準確率、追溯機制,提升精細化管理。
現場效果圖:
.png)



項目預估效益:
必旺智能科技為萬新電氣量身打造一個精益化、智能化、自動化及信息化的現代化工廠。項目開展過程中得到客戶各位領導和員工的高度認可和贊揚,車間人均效率提升20%,物流距離縮短40%,生產及倉儲通過自動化設計人員減少5%,庫容提升30%,生產現場5S及目視化管理顯著提升。
成功案例
選擇上海必旺
開啟您的智能制造模式 ,加速企業數字化轉型
免費獲取方案報價
(1)_20230519.png)

400-800-9259

.jpg)

返回列表




